Serie 400 Accessorio per cappa a soffittoAC462181
AC462181
Aggiungi a confronto prodotti
Controllare la compatibilità dell'apparecchiatura
Come trovare il tuo E-Number
Il numero di modello (numero E) si trova sulla targa tipo del dispositivo.
Specifiche
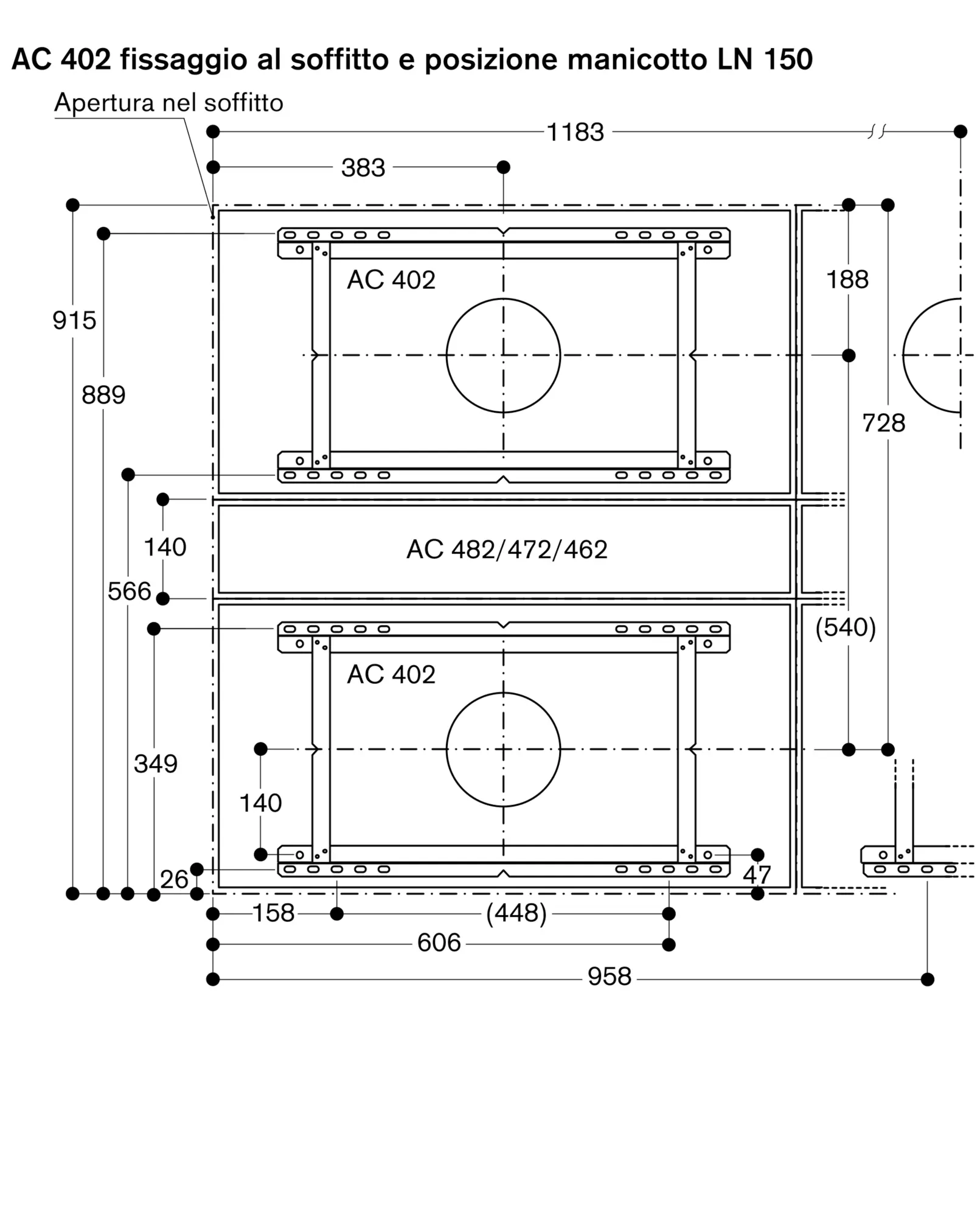
Modulo comandi per centro di aspirazione a soffitto senza luci
Per configurazioni senza illuminazione
Livello di potenza dipendente dal motore Gaggenau utilizzato
Telecomando a infrarossi per il controllo remoto, i comandi sono presenti anche sul modulo controllo
3 livelli di potenza a controllo elettronico e un posizione intensivo.
Ventilazione intervallata, 6 min.
Spegnimento ritardato, 6 min.
Indicazione saturazione filtro.
Connessione al relativo motore via cavo dati
Prevedere interruttore finestra
Sistema di fissaggio al modulo filtrante
Consumo di energia 355 - 1160 W.
Lunghezza cavo di connessione 1.75 m, con spina.













