Produktet er ikke længere tilgængeligt
1 / 0















+ 3
Produktet er ikke længere tilgængeligt
Produktet er ikke længere tilgængeligt
Specifikationer
Flex-funktion til kombination af rektangulære zoner
Fri placering af kogegrej på de kombinerede zoner
Højeffektiv ventilation integreret i kogetop
Fuldautomatiske ventilationsfunktioner
Stort fedtfilter af metal med højt fedtoptag
Energibesparende og lydsvag emhætte
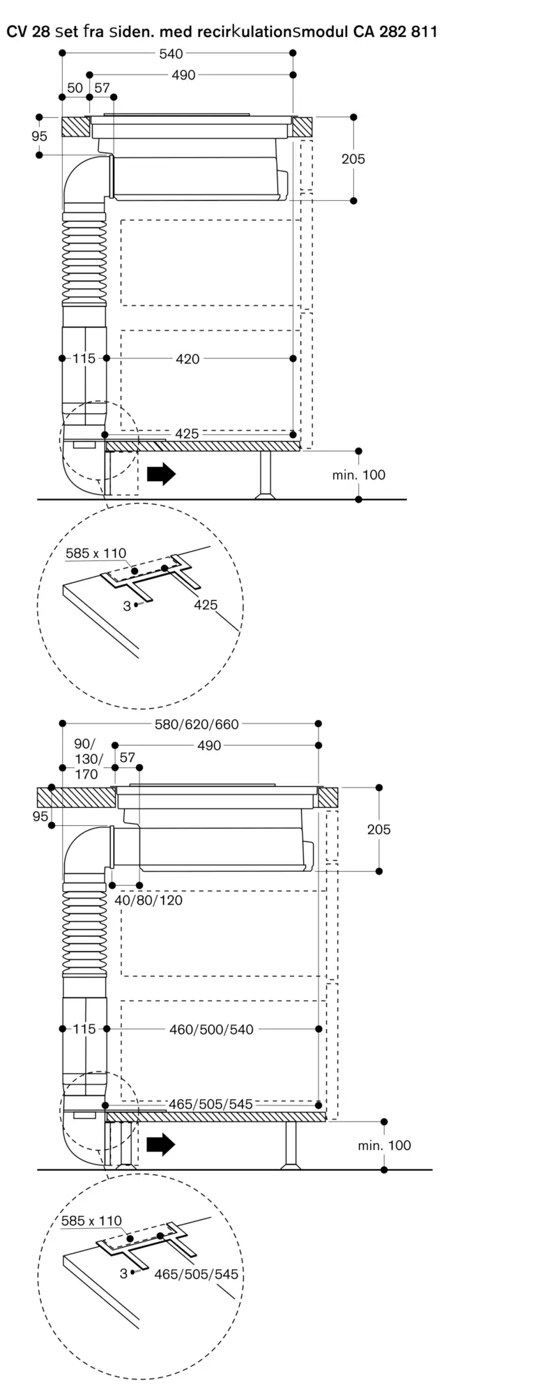
Til aftræk eller recirkulation
Recirkulationsmodul med kulfilter: pladsbesparende kanaler integreret i det nederste kabinet samt problemfrit filterskift
Twist-Pad-betjening med aftagelig magnetknap
Enkel kontrol af alle funktioner med tofarvet display
2 flex-induktionszoner 19x23 cm (2200 W, med Booster 3700 W), sammenkoblede 38x23 cm (3300 W, med Booster 3700 W)
Reduktion af dårlig lugt til recirkulation 89 %
Twist-Pad-betjening med aftagelig magnetknap
Brugervenlig betjening med tofarvet display (hvid/orange)
Kogezone- og kogeområde markering
Kontrol af ventilation med 3 elektronisk styrede effekttrin og 1 intensivt trin
Flex-funktion til rektangulære zoner
Automatisk gryderegistrering, når kogetoppen er tændt
Professionel madlavningsfunktion
Kogesensorfunktion (til brug med kogesensor CA 060 300)
Stegesensorfunktion
Booster-funktion til gryder
Booster-funktion til stegepander
Varmholdningsfunktion
Automatisk sensorstyret justering af ventilationssystemet
Automatisk aktivering af ventilationen, når der bruges en kogezone
Intervalventilation, 6 min
Sensorstyret efterløbsfunktion
Mætningsindikation for fedtfilter och kulfilter
Emaljeret dæksel, som tåler maskinopvask, til ventilation
Motorteknik med højeffektiv børstefri DC-motor
Luftstrømsoptimeret inderside for effektiv luftcirkulation
Stopur
Timer op til 99 minutter
Timer
Memory-funktion
Menu for tilvalg
Energiindstilling
Årligt energiforbrug 49.5 kWh
Ventilationseffektivitet, klasse A
Belysningseffektivitet, klasse -
Fedtfiltreringseffektivitet, klasse B
Lydstyrke ved min. hastighed 61 dB / maks. hastighed 69 dB
Hovedafbryder
Betjeningsindikator
Gryderegistrering
2 trins restvarmeindikation for hver kogezone
Børnesikring
Feriesikring (sikkerhedsafbryder)
Aftagelig overløbsbeskyttelse med to trin, der tåler maskinopvask
Fedtfilterregistrering
Bredde for nederste kabinet: min. 80 cm
Dybde for bordplade: min. 60 cm, med forkortede skuffer. Fuld skuffedybde kan anvendes fra 70 cm
Ved recirkulation skal der installeres et modtryksspjæld med et maksimalt åbningstryk på 65 Pa
For optimal ydelse ved recirkulationsdrift anbefaler vi et overfladeareal på mindst 720 cm²
Indbygningshøjde 205 mm
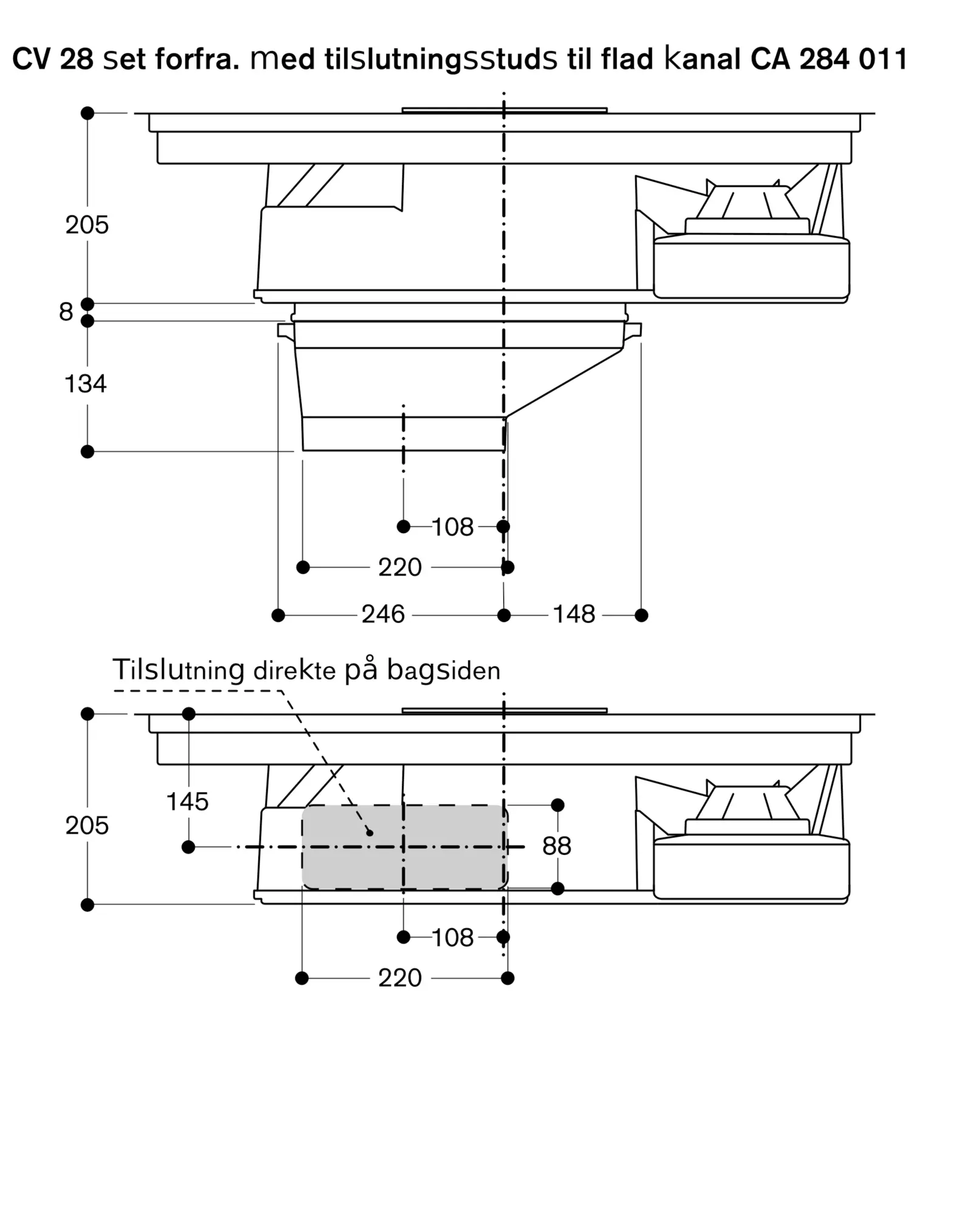
Rørsystem til udsugning eller recirkulation skal bestilles separat som særtilbehør
Kun egnet til magnetisk kogegrej. For optimal kogning og stegning anbefaler vi kogegrej med sandwichbund
Kogetoppen fastgøres fra undersiden
Produktet skal være tilgængeligt nedefra
Apparatets vægt: 29 kg.
Ved installation af emhætte med aftræk i køkken med pejs skal emhættens tilslutning have en hovedafbryder.
Bæreevne og stabilitet, især ved tyndere bordplader, skal understøttes af en passende konstruktion. Der skal tages hensyn til vægten af apparatet og den øvrige belastning
Det er muligt at montere bordplader i sten, syntetisk materiale og massivt træ. Varmebestandighed og tætning af udskæring aftales med bordpladeleverandøren
Udskæringen skal være lige og jævn for at sikre, at apparatet placeres korrekt på pakningen. Brug ikke en underliggende foring
Da der kan være måltolerancer på glaspladen og i udskæringen af bordpladen, kan fugebredden variere
Tilslutningsdelflat kanal for recirkulation: fladt kanalsystem DN 150
I alt 7.4 kW
Ledning 1.5 m uden stik