1 / 0







Informations produit
Intérieur inox
Concept d'éclairage luxueux
Fabrique de glace intégrée avec raccordement direct à l'eau
Distributeur de glaçons, glace pilée et d'eau fraîche éclairé
Compartiments dans la contre-porte en aluminium massif
Volume net total 198 litres
Classe d'efficacité énergétique A+
Contrôle électronique de la température avec affichage digital.
Répartition dynamique du froid.
Dégivrage automatique par évaporation.
Mode Repos, certifié Star-K.
Alarme en cas de porte ouverte ou de dysfonctionnement.
Système No-Frost avec Super Congélation.
Température réglable de -16°C à -24°C.
Compartiment congélateur 4 étoiles.
Capacité de congélation 9 kg en 24 h.
Autonomie de 9 h en cas de coupure de courant.
4 tablettes en métal massif, dont 2 réglables en hauteur.
2 tiroirs coulissants sortie totale avec façade transparente, dont 1 grand tiroir.
Eclairage intérieur luxueux avec éléments d'éclairage latéraux.
1 compartiment de contre-porte de grande profondeur.
1 compartiment dans la contre-porte avec clapet transparent.
Eclairé.
Intégré, avec raccordement fixe à l'eau.
Arrêt séparé de la fabrique de glace.
Production de glaçons, environ 1.9 kg/24 h.
Glaçons et glace pilée.
Bac à glaçons amovible pour une réserve d'environ 3 kg.
Réserve d'eau fraîche: 1.5 litre.
Consommation d'énergie 299 kWh/an.
Niveau sonore 41 DB (re 1 pW).
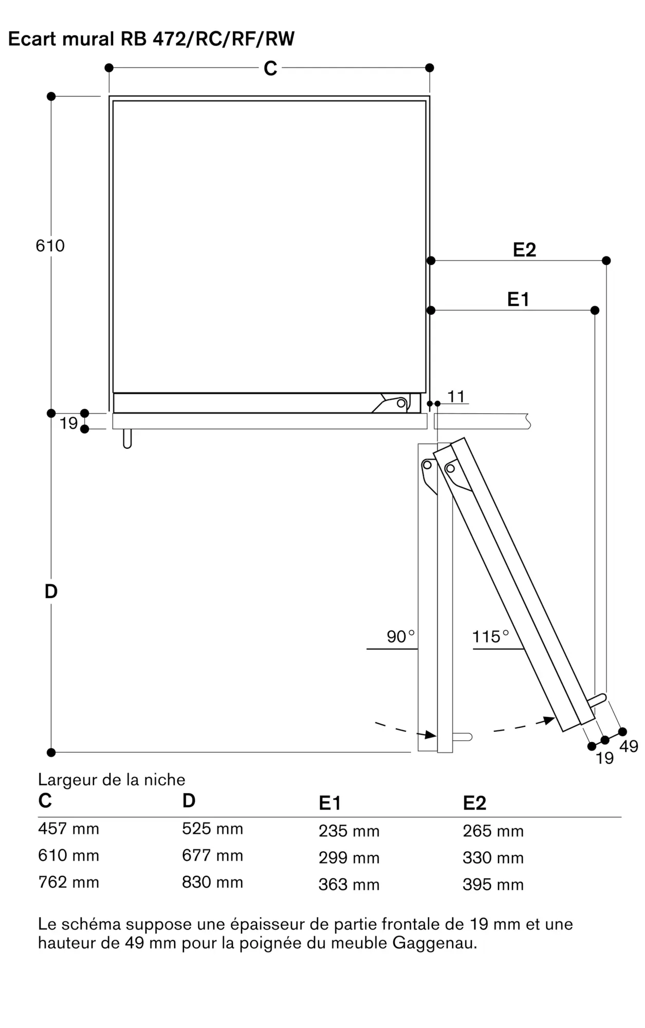
Charnière pantographe.
Angle d'ouverture de porte 115°, peut être bloqué à 90°.
Poids maximum de l'habillage de porte : 63kg
Vanne d'arrêt du raccordement à l'eau doit être placée à côté de l'appareil et rester accessible.
Si la pression de l'eau est supérieure à 0,8 MPa (8 bar), installer une soupape de limitation de pression entre le robinet d'arrivée d'eau et le tuyau.
Puissance de raccordement totale 0.55 kW.
Câble de raccordement 3.0 m avec prise.
Raccordement à l'eau.
Tuyau d'arrivée d'eau 3.0 m avec connexion 3/4 ".
Pression d'eau de 2 à 8 Bar.