1 / 0






Tuotteen edut
Tuotetiedot
Tasapinta-asennus
Vetimetön/automaattinen avausmekanismi
Mikroaaltouunia ja grilliä voi käyttää sekä yksin että yhdessä
Jopa 5 toiminnon ohjelmointi peräkkäin, mukaan lukien yhdistelmätoiminnon ja lepoajan ohjelmointimahdollisuus
TFT-kosketusnäyttö
Lämpötila elektronisesti
Tilavuus 21 litraa
Mikrouunitoiminto, jossa 5 tehovaihtoehtoa: 900, 600, 360, 180, 90 W
Grillissä 3 tehovalintaa, maksimiteho 1300 W.
Grilli ja mikroaaltouuni, yhdisteltävät tehotasot 360, 180 ja 90 W
10 automaattista ohjelmaa, painontunnistus:
3 sulatusohjelmaa
4 kypsennysohjelmaa
3 yhdistelmäohjelmaa
Mahdollisuus tallentaa omia reseptejä
Luukun automaattinen avaus
Kierrettävät valitsimet ja TFT-kosketusnäyttö
Tekstinäyttö ja 52 kieltä
Ohjepainike opastaa käyttöä
Ovi avautuu sivulle 110 asteen kulmassa
Innowave
Todellisen lämpötilan näyttö
Kypsennystilan valaistus 25 W
Hygieeniset sisäosat ruostumatonta terästä, pohja lasikeramiikkaa
Termisesti eristetty luukku ja kaksinkertainen lasitus
Kolminkertainen luukun lukitus
Lapsilukko
Turvakatkaisin
Uunivaipan jäähdytys ja ylikuumentumissuoja
Saranoiden puolta ei voi vaihtaa
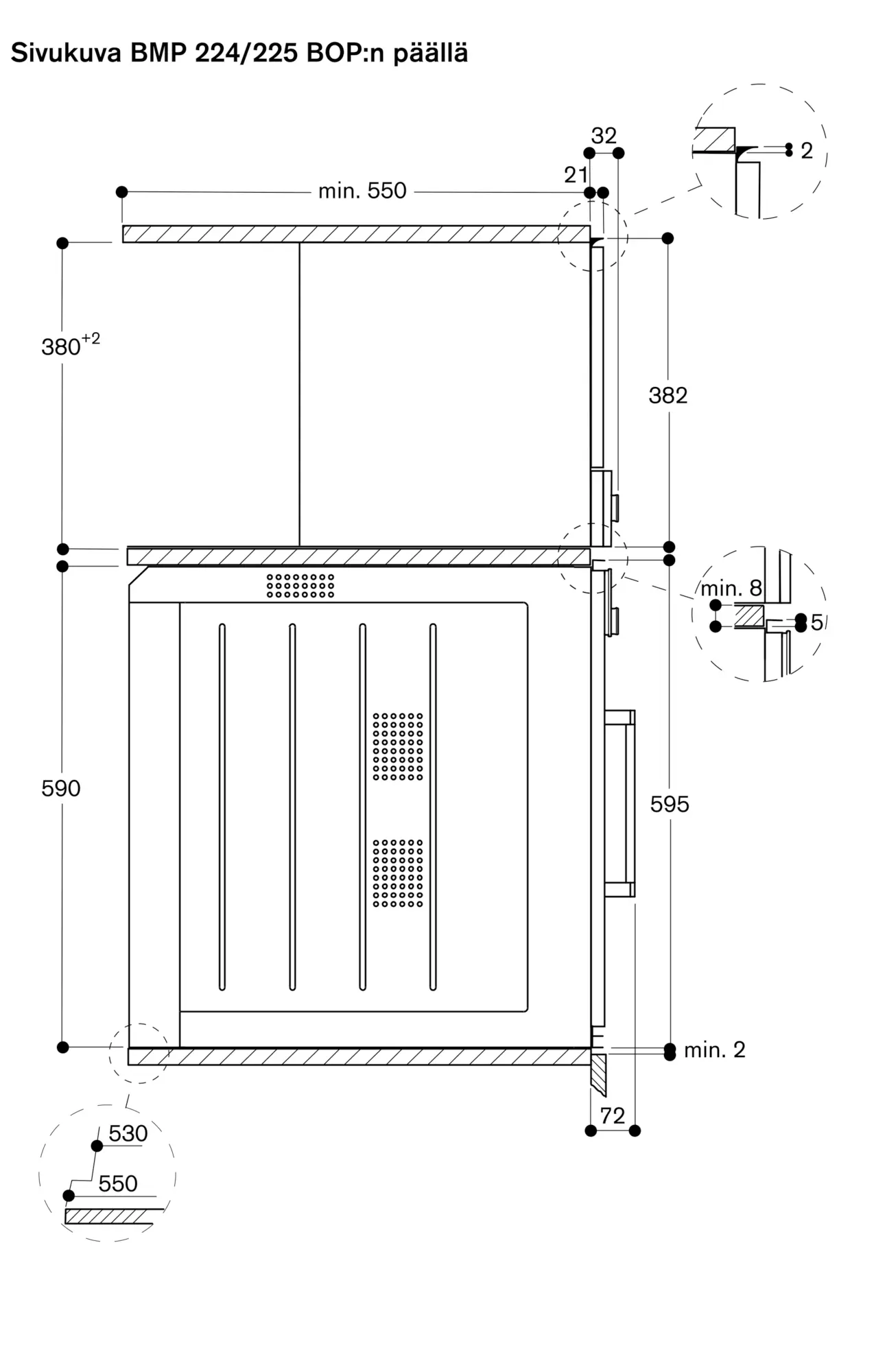
Pienin asennuskorkeus 85 cm (syvennyksen pohjan yläreunasta)
Jalkojen korkeus säädettävissä
BMP asennetaan BOP:n yläpuolelle välihyllyllä
Luukun ja kalusteen paneelin välille tarvitaan vähintään 5 mm:n rako sivusuunnassa.
Laitteen ovipaneeli kohoaa kalusterungosta 21 mm
Kulma-asennuksessa huomioi, että luukku avautuu vähintään 90°.
Liitäntäteho 2.0 kW
Liitosjohto 1.70 m, pistoketyyppinen