Il prodotto non è più disponibile
1 / 0








Il prodotto non è più disponibile
Il prodotto non è più disponibile
Highlights
Dati tecnici
Installazione a filo.
Porta senza maniglia / ad apertura automatica
Funzionamento solo microonde ocombinazione microonde e grill.
Programmazione consecutiva di max. 5 stadi di potenza
Display TFT touch
Controllo elettronico della temperatura.
Volume netto 21 litri
Potenza microonde regolabile in 5 stadi: 900, 600, 360, 180, 90 W
Grill a tutta superficie con 3 livelli di intensità, massimo livello di potenza 1300 W.
Grill a tutta superficie combinabile con i livelli di potenza delle microonde 360, 180 e 90 W.
10 programmi automatici con indicazione del peso: 3 programmi di scongelamento, 4 programmi di cottura, 3 programmi combinati.
Funzione per la memorizzazione di ricette personalizzate
Apertura automatica della porta
Display TFT touch con manopole per un facile e intuitivo utilizzo
Tasto informazioni
Apertura laterale della porta fino a 110°
Tecnologia Innowave.
Illuminazione (25W).
Vano cottura in acciaio inox con base in ceramica
Porta termoisolata con doppio vetro
Sicurezza bambini
Spegnimento di sicurezza.
Alloggiamento raffreddato con protezione termica.
Cerniere della porta non reversibili.
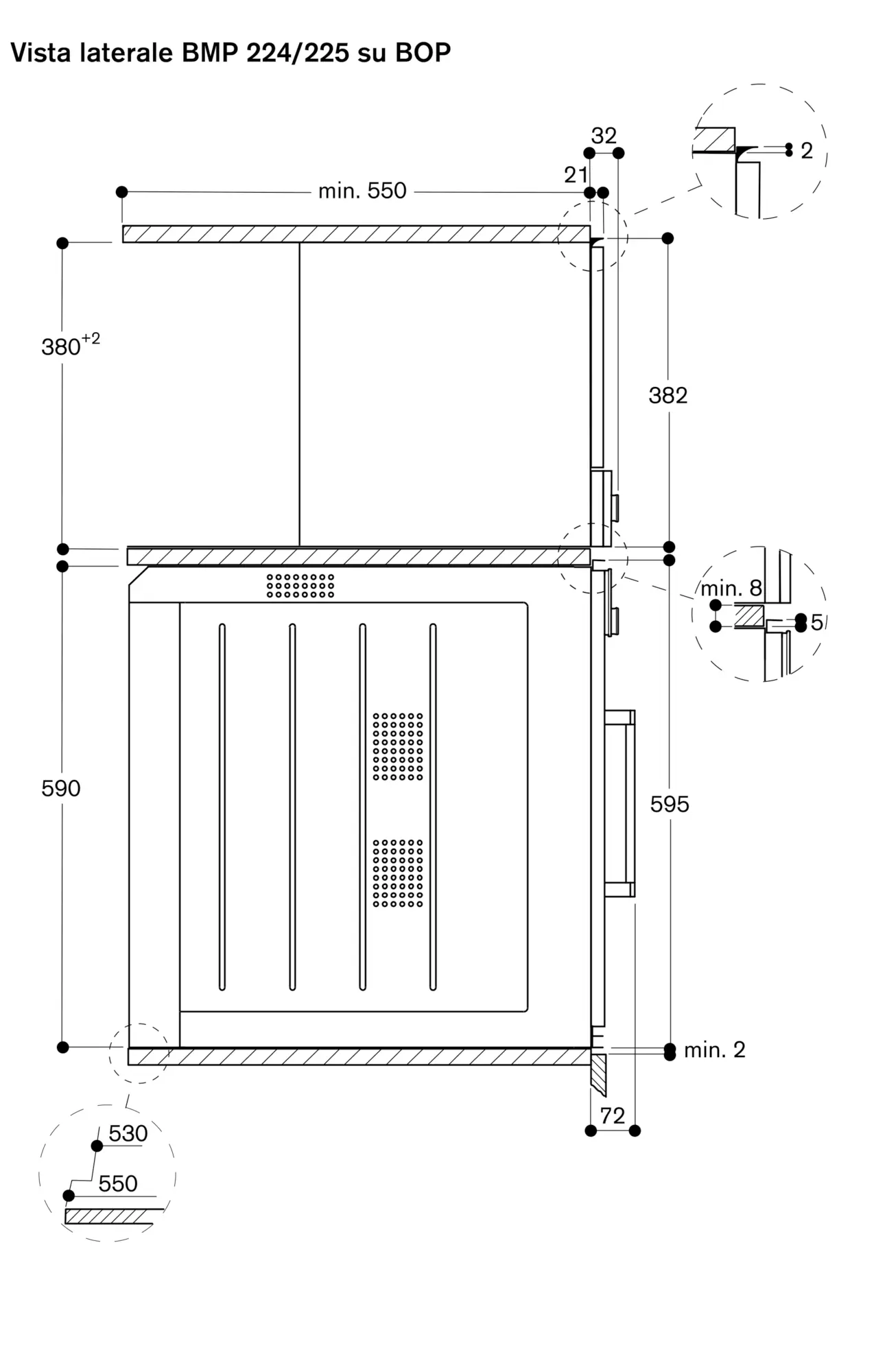
Altezza minima di installazione 85 cm (da terra fino al bordo superiore del fondo della nicchia).
Piedini regolabili in altezza.
Si consiglia di prevedere un ripiano intermedio in caso di installazione di un BMP al di sopra di un BOP
Prevedere uno spazio laterale tra forno e pannello del mobile di min. 5 mm.
L'apparecchio sporge di 21 mm dal fronte della nicchia del mobile
Quando si progetta una soluzione vicino ad una parete, prestare attenzione alla porta ad apertura laterale e alla distanza minima richiesta dalla parete.
Assorbimento totale 2.0 kW.
Intuitivo display con testi.
Cavo di collegamento 1.70 m con spina.
Cerniere a destra