1 / 0















Additional information
Unique usage concept: - Maximum usage of interior: stepped shelf, full depth shelves as well as integrated fixtures for various containers - Easy access: fully extendable shelves and drawers - Optimal overview: intelligent lighting concept, use of glass and transparent materials - Efficient preparation, cooking and storage with Gaggenau appliances: integration of Gastronorm inserts
Three climate zones incl. fresh cooling close to 0 °C
Net volume 516 litres
Integrated ice maker with fixed inlet water connection
Illuminated dispenser for ice cubes, crushed ice and chilled water
Energy efficiency class A+
Electronic temperature control with temperature display.
Touch keys.
Dynamic cold air distribution.
Energy-saving vacation mode.
Open-door and malfunction alarm.
Child lock.
Top, side panels and ventilation grille in stainless steel.
Net volume 320 litres.
Fast cooling.
Automatic defrosting with defrost water evaporation.
Temperature adjustable from +2 °C to +8 °C.
4 safety glass shelves, 2 of which are fully extendable and 1 height adjustable.
Wine and champagne rack for 4 bottles, can be completely folded away.
Fixture for storing glass tray.
2 large door racks with aluminium profile for bottles, 1 of which is height adjustable. With flexible bottle holder.
4 door racks with aluminium profile, 1 of which is height adjustable.
Bright interior lighting with integrated glare-free light elements.
Stepped shelf in aluminium for optimum use of interior and for storing GN inserts. Possible combinations: 1 x 1/3 GN 2 x 1/3 GN 3 x 1/3 GN 1 x 2/3 GN 1 x 2/3 GN und 1 x 1/3 GN
1 large vegetable drawer.
1 humidity drawer for vegetables.
Net volume 19 litres.
Dynamic cold air distribution.
Separate automatic temperature control, with settings for fish, meat or vegetables.
Automatic defrosting with defrost water evaporation.
Antimicrobial activated charcoal air filter.
Net volume 162 litres.
No-frost technology with fast freezing.
Temperature adjustable from - 14 °C to - 24 °C.
Large 4-star freezer compartment.
2 small 2-star areas.
Freezing capacity 12 kg/24 h.
Storage time after a malfunction 10 h.
3 safety glass shelves, 2 of which are height adjustable.
2 large freezer drawers.
All freezer drawers and safety glass shelves can be removed.
1 integrated shelf.
3 door racks with aluminium profile.
Bright interior light.
Light can be switched on separately.
For large pitchers and sport bottles.
Ice maker integrated in the freezer compartment, with fixed inlet water connection.
Can be switched off.
Ice cube production approx. 1.2 kg/24 h.
Ice cubes and crushed ice.
Anti-Clump technology.
Removable ice storage container with approx. 2 kg capacity.
Fast ice production.
Ice water supply approx. 1 litres.
Energy consumption 459 kWh/year.
Noise level 44 dB (re 1 pW).
The large volume and the high performance of the appliance result in a higher noise level.
Wall recess of 25 mm necessary.
Front and back casters height adjustable from the front by 15 mm.
Door opening angle of 160°, left door fixable at 90°.
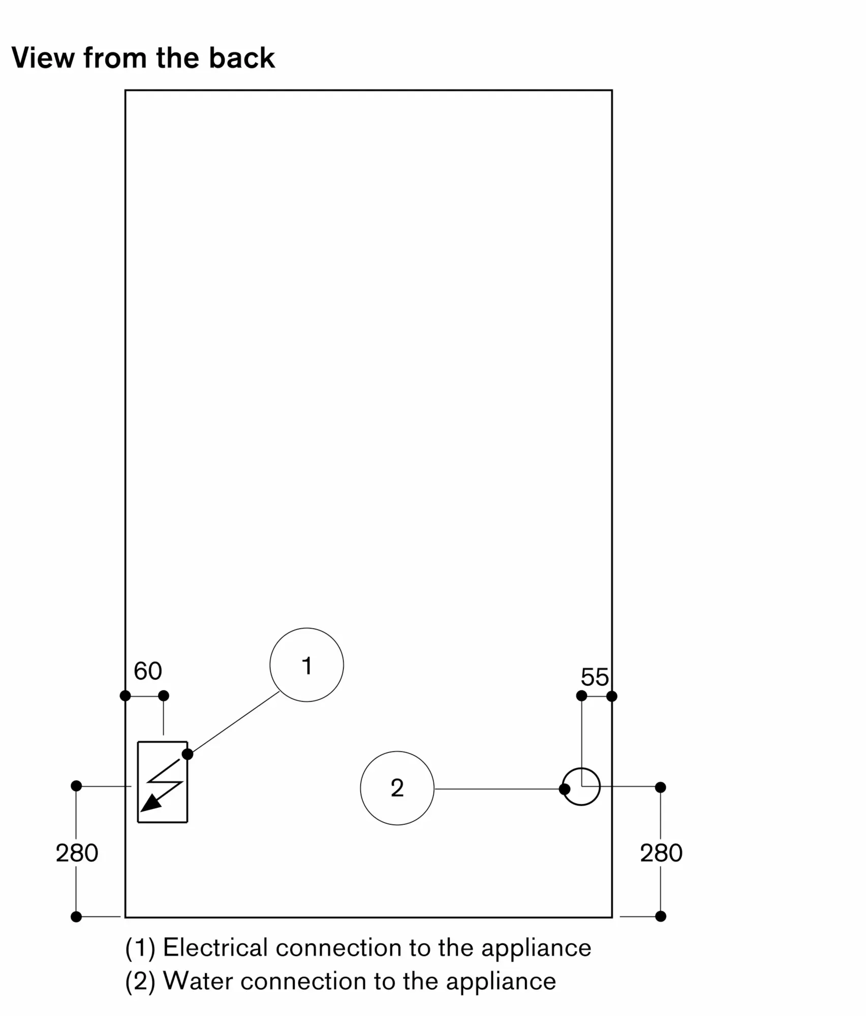
The socket and shut-off valve must be planned next to the appliance.
If the water pressure exceeds 0.8 MPa (8 bar), connect pressure relief valve between water tap and hose set.
Weight when empty 188.
Total connected load 0.19 KW.
Connecting cable 2.2 m with plug.
Water inlet.
Supply hose 2.0 m with 3/4 " connection.
Water pressure 2 to 8 bar.