1 / 0








Additional information
Stainless steel interior
Generous lighting concept
Solid aluminium door racks
Net volume 369 litres
Fresh cooling drawer, temperature control from 0 °C to 3 °C
One motorised glass shelf, adjustable when fully loaded
Energy efficiency class A++
Electronic temperature control with digital display.
Dynamic cold air distribution with Multi-Air-Flow.
Automatic defrosting with defrost water evaporation.
Open-door and malfunction alarm.
Net volume 318 litres.
No-frost technology with fast cooling.
Temperature adjustable from +2 °C to +8 °C.
4 safety glass shelves, 1 of which is motorised, 2 manually adjustable.
2 fully extendable drawers with transparent front, 1 of which deep and 1 shallow.
Bright interior lighting with light pillars.
3 height adjustable door racks, 1 of which is extra deep.
1 door rack with transparent front flap.
Net volume 51 litres.
Separate automatic temperature control, with settings for fish, meat or vegetables.
1 large, fully extendable drawer with transparent front and integrated lighting.
Energy consumption 133 kWh/year.
Noise level 40 dB (re 1 pW).
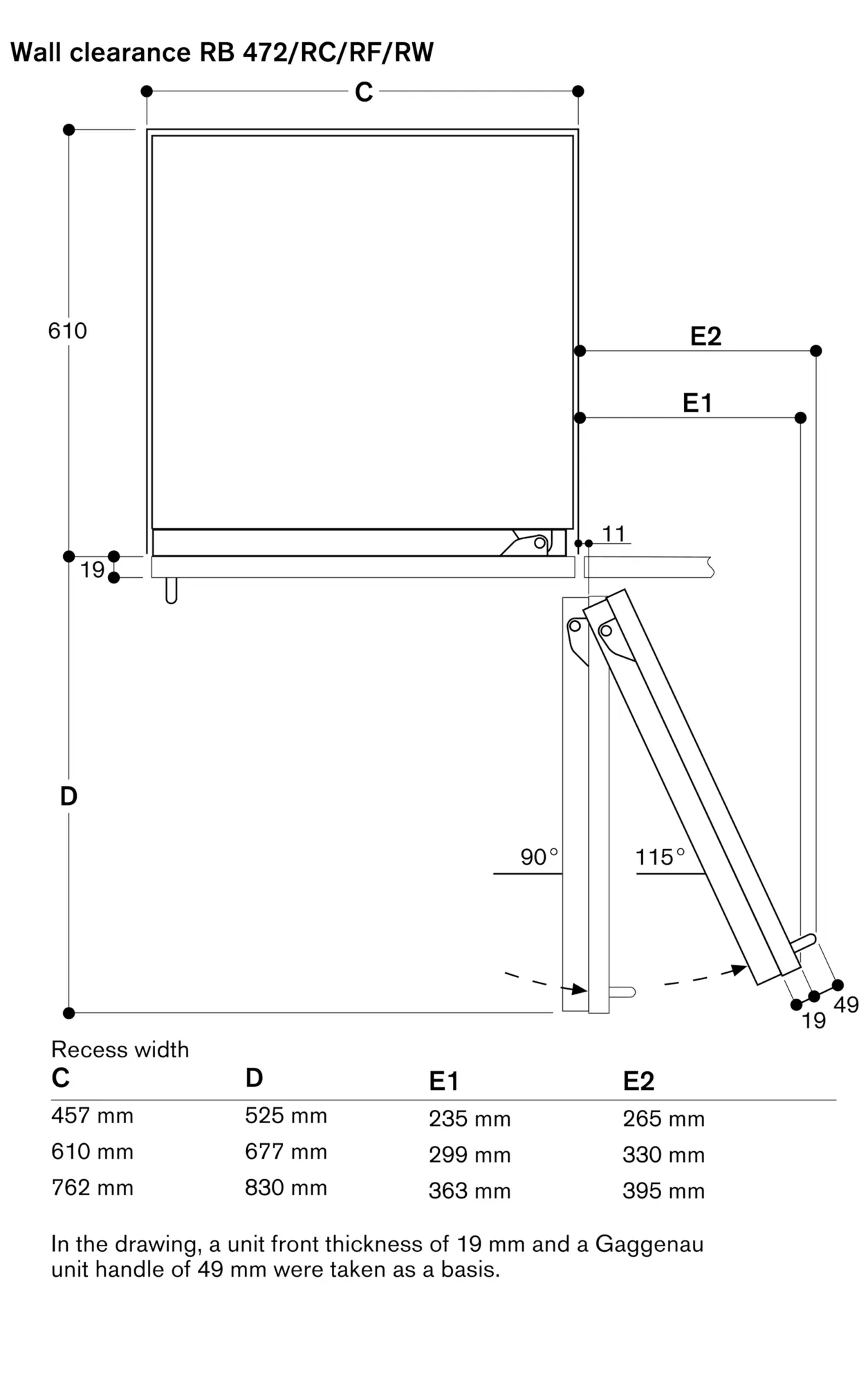
Flat hinge.
Door hinge right, reversible.
Door opening angle of 115°, fixable at 90°.
Max. door panel weight 35 kg.
Total connected load 0.266 KW.
Connecting cable 3.0 m, pluggable.