1 / 0






Highlights
Additional information
Flush installation
Handleless door / automatic door opening / door opening via voice assistant possible
Single operation and combination of microwave and grill
Sequential operation of up to 5 modes incl. programming of combined operation and rest time
TFT touch display
Electronic temperature control
Interior volume 21 litres
Microwave operation with 5 output levels: 900, 600, 360, 180, 90 W.
Full surface grill with 3 levels of intensity, maximum output 1300 W.
Full surface grill with microwave output levels 360, 180 and 90 W combinable.
10 automatic programmes with weight indication:
3 defrosting programmes
4 cooking programmes
3 combination programmes
Option to save individual recipes.
Automatic door opening.
Rotary knob and TFT touch display operation.
Clear text display.
Information key with use indications.
Side-opening door opens up to 110° angle.
Innowave.
25 W interior light.
Hygienic stainless steel interior with glass ceramic base.
Thermally insulated door with double glazing.
Child lock.
Safety shut-off.
Cooled housing with temperature protection.
Door hinge not reversible.
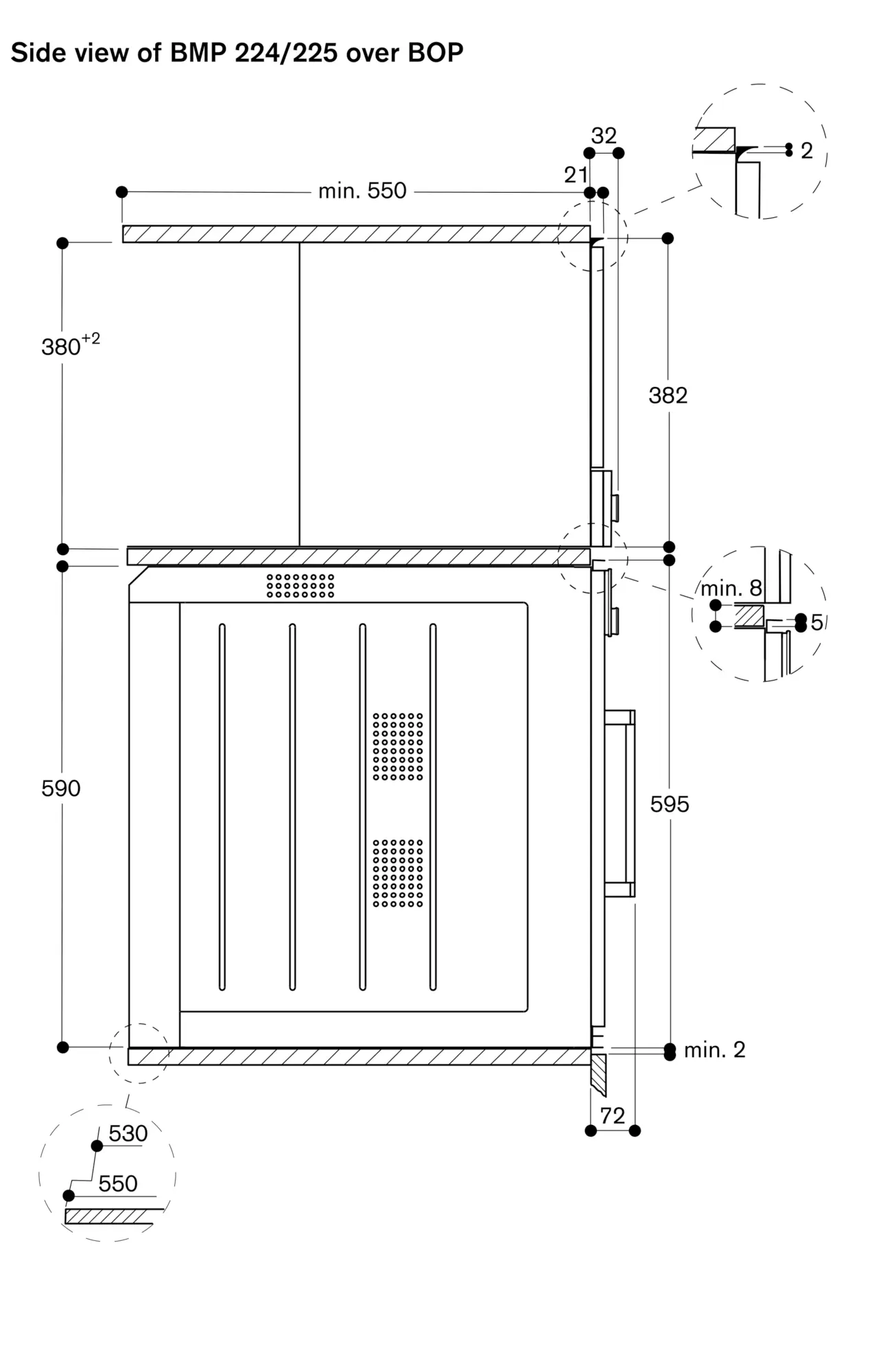
Minimum installation height 85 cm (top edge of niche bottom).
Height-adjustable feet.
Installation of BMP above BOP with intermediate shelf.
Necessary lateral gap between appliance door and furniture panel of min. 5 mm.
The door panel surface of the appliance extends 21 mm from the furniture cavity.
When planning a corner solution, pay attention to the side-opening door and the minimum required distance to the wall.
Total connected load 2.0 KW.
Connection cable 1.70 m, pluggable.