1 / 0






Caractéristiques
Informations produit
Installation à fleur.
Porte sans poignée / ouverture automatique
Utilisation en mode micro-ondes et gril, séparément ou en combinaison.
Programmation jusqu'à 5 modes de cuisson consécutifs, incluant mode combiné et temps de repos
Ecran TFT sensitif
Contrôle électronique de la température
Volume utile: 21 litres
Fonction micro-ondes avec 5 puissances : 900, 600, 360, 180, 90 W.
Gril grande surface, 3 puissances, max. 1300 W.
Gril grande surface combinable avec fonction micro-ondes 360, 180 et 90 W.
10 programmes automatiques selon le poids :
3 programmes de décongélation
4 programmes de cuisson
3 programmes combinés.
Possibilité de mémoriser des recettes personnelles.
Ouverture automatique de la porte.
Commande par boutons rotatifs et écran TFT sensitif.
Affichage texte clair.
Touche info avec conseils d'utilisation.
Porte à ouverture latérale 110°.
Technologie Innowave.
Eclairage 25W.
Enceinte de cuisson en inox avec sole en vitrocéramique.
Porte avec isolation thermique 2 vitres.
Sécurité enfants.
Coupure de sécurité.
Ventilateur favorisant le refroidissement de l'appareil avec protection thermique.
Charnières non réversibles.
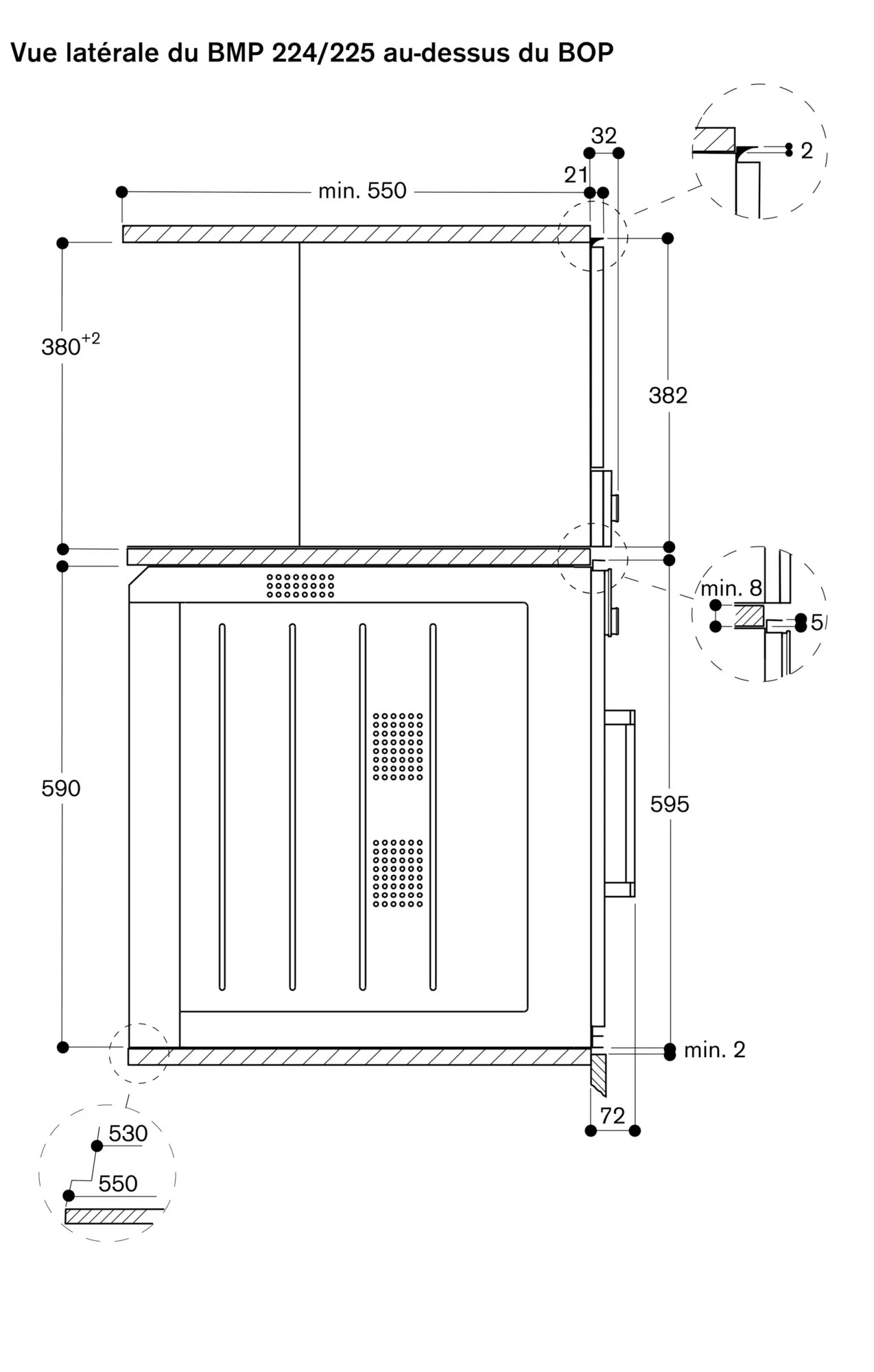
Hauteur minimale d'installation 85 cm (plancher inférieur de la niche).
Pieds réglables en hauteur.
Installation du BMP au-dessus du BOP avec un plancher intermédiaire.
Ecart latéral entre la porte du four et la façade du meuble, min. 5 mm.
Distance entre le corps meuble et la vitre avant de l'appareil : 21 mm.
Pour une installation en angle, faire attention à l'ouverture de la porte latérale et à la distance minimale requise par rapport au mur.
Puissance totale 2.0 kW.
Câble de raccordement 1.70 m, avec prise.