1 / 0









Highlights
Produktdetails
Wärmepumpen-Technik
Doppel-Rollkolbenkompressor für geringeren Energieverbrauch.
Selbstreinigender Kondensator für automatische Flusenentfernung
Sehr leises Trocknen mit nur 58 db
Smart Dry wählt automatisch das passende Trocknerprogramm basierend auf dem letzten Waschgang.
Beleuchteter Drehknebel mit integriertem Ein- und Ausschalter.
Großes Touchdisplay mit Klartext- und Symbolanzeige.
Programmablauf- und Restzeitanzeige.
Zeitvorwahl bis zu 24 h Stunden.
Multisignaltöne.
Feuchte- und zeitgesteuerte Programme.
Wärmepumpen-Technik.
Automatische Wärmetauscherreinigung.
Auffrischungsfunktion ohne vorherigen Waschgang.
Knitterschutz nach Programmende.
Nachlegefunktion.
Kindersicherung.
Smart Energy-System (Energiemanager).
Smart Dry (Waschmaschine wählt automatisch das passende Trocknerprogramm).
Fernsteuerung und -überwachung.
Baumwolle
Baumwolle Eco.
Pflegeleicht.
Mix.
Extra Kurz 40.
Outdoor + Imprägnieren.
Steam Assist.
Hemden/Blusen.
Wolle im Korb
Hygiene.
Handtücher.
Duvet.
Zeitprogramm warm.
App Programme: Smart Dry, Sport, Unterwäsche, Synthetik, Daunen, Zeitprogramm kalt.
Optionen: Smart Dry, Auffrisch-Optionen, Halbbeladung, Fernstart, Knitterschutz, Bügelleicht, Trockenziel, Schleuderklasse, Schontrocknen, Favorit.
varioSoft-Trommelsystem.
Trocknen von Wolle ohne Einlaufen und Verfilzen dank beiliegendem Wollekorb
Fassungsvermögen 1 - 9 kg.
Trommelinnenbeleuchtung.
Energie-Effizienz-Klasse B in einer Reihe von Energieeffizienzklassen von A bis G.
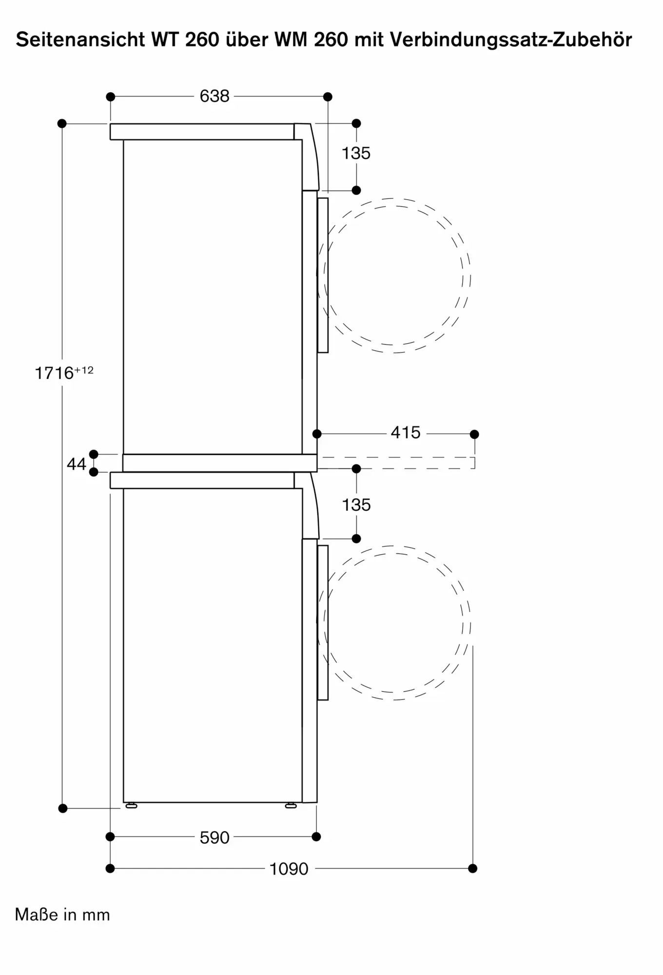
Perfekt kombinierbar mit Waschmaschine WM 260 165 und WM 260 166.
Rechtsanschlag., wechselbar.
Grosses Bullauge mit 180 ° Türöffnungswinkel.
Höhenverstellbare Füsse.
Unterschiebbar: Höhe 84,2 cm.
Stapelbar über Waschmaschine WM 260 165 und WM 260 166 mit passendem Sonderzubehör. Mit ausziehbarer Ablage WA 027 500.
Gesamtanschlusswert 0.8 kW.
Anschlusskabel 1.45 m mit Stecker.