1 / 0




Trouvez un revendeur
Trouvez un revendeur
Caractéristiques
Intérieur inox.
Modèle à éclairage intense
Distributeur de glace et d'eau intégré avec raccordement direct à l'eau
Distributeur de glaçons, glace pilée et d'eau fraîche illuminé.
Compartiments dans la contre-porte en aluminium massif.
Volume net 320 litres
Réglage électronique de la température avec affichage digital.
Répartition dynamique du froid.
Dégivrage automatique par évaporation.
Mode repos certifié par Star-K.
Alarme en cas de porte ouverte ou panne
Système No-Frost avec Super Congélation
Compartiment 4 étoiles : congélateur.
4 clayettes en métal massif, dont 2 réglables en hauteur.
2 tiroirs coulissants avec façade transparente, dont 1 grand tiroir .
Intérieur bien éclairé à l'aide de colonnes d'éclairage.
1 compartiment de contre-porte de grande profondeur.
1 compartiment de contre-porte avec clapet transparent.
Eclairé.
Intégré, avec raccordement fixe à l'eau.
Arrêt seul du distributeur de glaçons possible.
Production approx. de cubes de glace : 4.2 lb/24 h
Glaçons et glace pilée.
Bac amovible pour conserver la glace d’une capacité approx. de 3 kg.
Réserve d'eau fraîche: 1.5 litre
Consommation électrique 494 kWh/year.
Consommation électrique 1.353 kWh/24 h.
Niveau sonore 39 DB (re 1 pW)
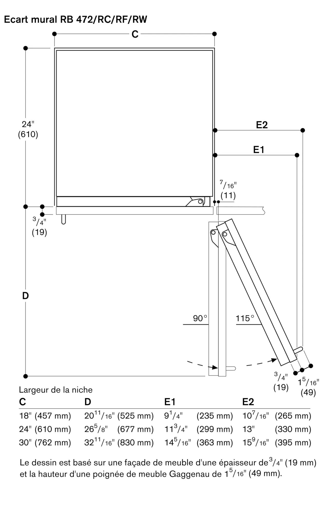
Charnière pantographe.
Angle d'ouverture de porte 115°, peut être fixé à 90°.
Poids max. du panneau de porte 57 kg.
Un robinet d’arrêt de l’entrée d’eau doit être installé près de l’appareil et accessible en tout temps.
Si la pression de l'eau dépasse 0,8 MPa (8 bar), connecter une soupape de surpression entre le robinet d'eau et les tuyaux.
Puissance totale absorbée : 0.565 kW.
Câble de branchement 118,1" avec prise
Tuyau d'arrivée d'eau.
Pression d'eau de 2,4 à 8,3 bars.