1 / 0




Find a local Dealer
Find a local Dealer
Highlights
Specifications
Stainless steel interior
Generous lighting concept
Integrated ice maker with fixed inlet water connection
Illuminated dispenser for ice cubes, crushed ice and chilled water
Solid aluminium door racks
Net volume 320 litres
Electronic precision temperature control with digital display.
Dynamic cold air distribution with Multi-Flow Air System.
Automatic defrosting with defrost water evaporation.
Sabbath mode certified by Star-K.
Open-door and malfunction warning system.
No-frost technology with fast freezing.
4-star freezer compartment.
4 solid metal shelves, 2 of which are manually adjustable.
2 fully extendable drawers with transparent front, 1 of which large, 1 regular.
Bright interior lighting with light pillars.
1 extra deep door rack.
1 door rack with transparent front flap.
Illuminated.
Integrated, with fixed inlet water connection.
Ice maker can be switched off independently.
Ice cube production approx. 1.9 kg/24 h.
Ice cubes and crushed ice.
Removable ice storage container with approx. 3 kg capacity.
Chilled water supply approx. 1.3litres.
Energy consumption 494 kWh/year.
Energy consumption 1.353 kWh/24 h.
Noise level 39 dB (re 1 pW).
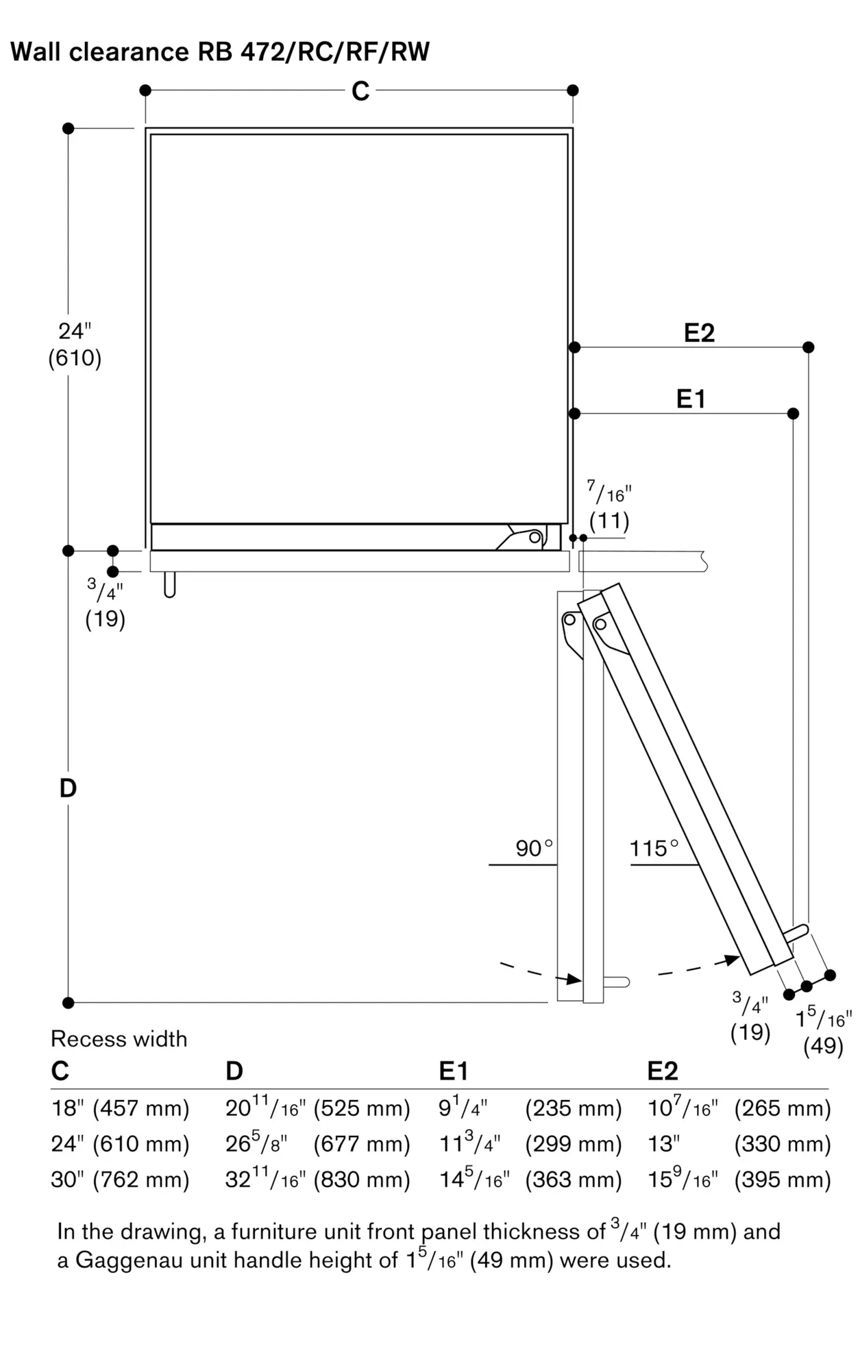
Flat hinge.
Door opening angle of 115°, fixable at 90°.
Max. door panel weight 57 kg.
Shut-off valve for water connection must be planned next to the appliance and always be accessible.
If the water pressure exceeds 0.8 MPa (8 bar), connect pressure relief valve between water tap and hose set.
Total rating 1.079 kWh/24h.
Connecting cable 118,1" (3.0 m) with plug.
Cold water connection required.
Electrical location 6'' above ground in lower left corner of unit.
Water pressure 2 to 8 bar.