400 series Vario wine climate cabinet 213.4 x 61 cmRW464301
RW464301
1 / 0











400 series Vario wine climate cabinet 213.4 x 61 cmRW464301
RW464301
Find a local Dealer
400 series Vario wine climate cabinet 213.4 x 61 cmRW464301
RW464301
Find a local Dealer
Highlights
Specifications
2 independently controllable climate zones
Consistent temperatures with exact control from +5 °C to +20 °C
Humidity control
Stainless steel interior
Fully extendable bottle trays in beech and aluminium
Presentation light option
Low-vibration operation
Capacity 98 bottles
Electronic temperature control with digital display.
Dynamic cold air distribution.
Automatic defrosting with defrost water evaporation.
UV-protection.
Open-door and malfunction alarm.
Net volume 390 litres.
Capacity 98 bottles (based on 0.75 l standard bottles).
10 fully extendable bottle trays, up to 4 of which for storage of magnum bottles.
Space for max. 13 bottle trays or shelves in aluminium.
Interior lighting with 2 ceiling spots in each climate zone, can be used as presentation light.
Energy consumption 174 kWh/year.
Noise level 42 dB (re 1 pW).
Flat hinge.
Door hinge right, reversible.
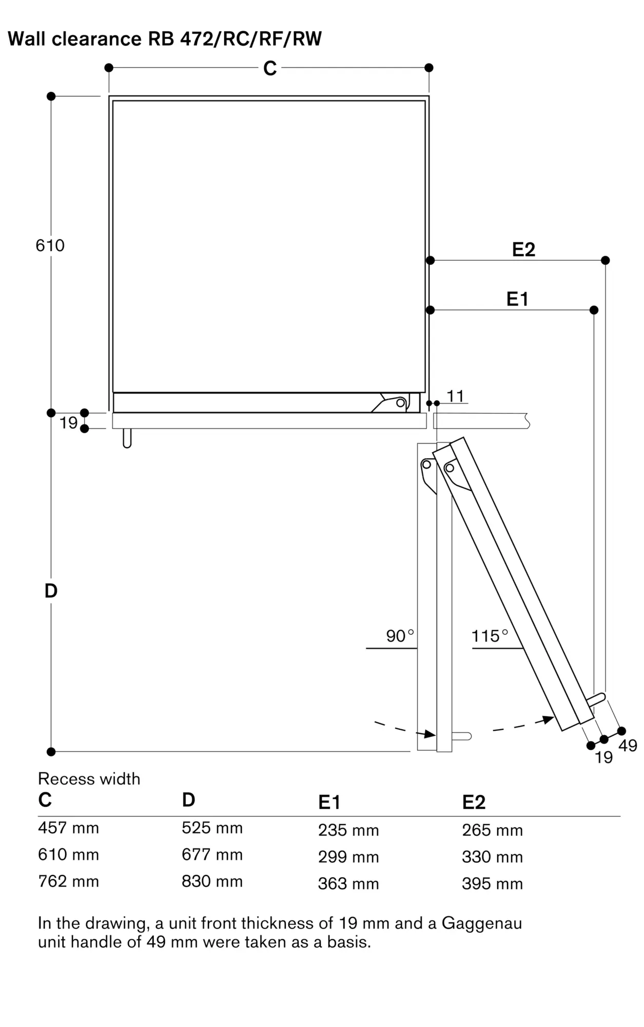
Door opening angle of 115°, fixable at 90°.
Max. door panel weight 74 kg.
The mains socket needs to be planned outside the built-in niche.
Total connected load: 0.131 KW.
Connecting cable 3.0 m, detachable.