200 series downdraft extractor 90 cm flush installationAL200190
AL200190
1 / 0















+ 14
200 series downdraft extractor 90 cm flush installationAL200190
AL200190
Find a local Dealer
200 series downdraft extractor 90 cm flush installationAL200190
AL200190
Find a local Dealer
Specifications
Extendable table ventilation, when not in use can be completely lowered into the worktop
Perfect in combination with frameless induction cooktops 90 cm wide for flush mounting
Transparent ventilation screen for discreet integration in the kitchen space
Ambient lighting through the glass edges
Guided Air technology ensures high vapour catch rate across the whole cooktop
Performance and noise level, output level 3/Intensive:
Air output according to EN 61591. Sound power level according to EN 60704-3. Sound pressure level according to EN 60704-2-13. Odour reduction for air recirculation in accordance with EN 61591.
Air extraction:
519 / 833m³/h.
62 / 71 dB (A) re 1 pW.
Air recirculation (with standard activated filters):
472 / 620m³/h.
65 / 71 dB (A) re 1 pW.
Odour reduction: > 90 %
Cooktop-based ventilation control.
Automatic function with sensor-controlled run-on function.
3 electronically controlled power levels and 1 intensive mode.
Grease filter saturation indicator.
Activated charcoal filter saturation indicator.
2 large-scale metal grease filters included, easy to remove, dishwasher-safe.
Overflow capacity 170 ml in grease filter. Additional capacity 600 ml in the remote fan unit.
Activated charcoal filter easily removeable from above for air recirculation system.
Gaggenau Black anodized aluminium frame.
1 user interface to set the power levels and 1 user interface to control the Guided Air technology.
Fan technology with highly efficient, brushless DC motor (BLDC).
Flexible installation of the fan unit at the front (for a compact wall solution), at the back (without loss of drawer space), or at a distance from the appliance.
Home network integration for digital services (Home Connect) wireless via WiFi.
The use of the Home Connect functionality depends on the Home Connect services, which are not available in every country. For further information please check: home-connect.com.
Energy efficiency class A at a range of energy efficiency classes from A+++ to D.
Energy consumption 37.8 kWh/year.
Ventilation efficiency class A.
Ilumination efficiency class -.
Grease filter efficiency class C.
Sound level min. 41 dB / max. 62 dB normal mode.
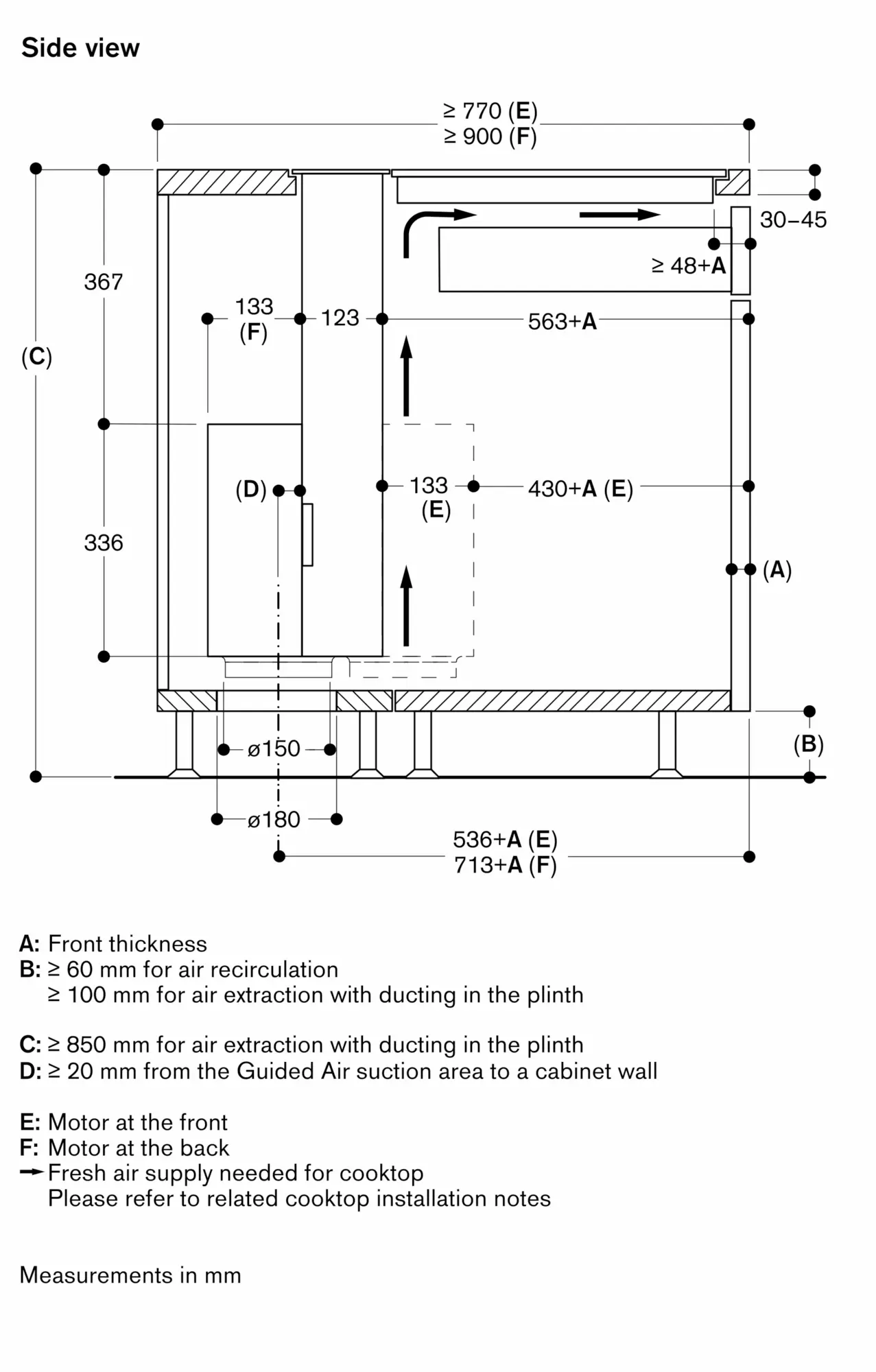
Compatible with frameless cooktops 400 series (CX 492) or 200 series (CI 292), in a single worktop cut-out.
The table ventilation can be installed in the cabinet or between two (e.g. for an island installation deeper than 100 cm).
Width of the cabinets 90 cm, 100 cm or 120 cm.
No upper cabinets should be installed above the table ventilation to maintain optimum performance.
The following distance should be observed:
- 50 cm left and right of the table ventilation to the wall or neighbouring tall cabinets. - 5 cm from the table ventilation frame to the wall.
Installation is possible in worktops made of stone, synthetics or solid wood. Heat resistance and watertight sealing of the cut edges must be observed. Concerning other materials please consult the worktop manufacturer.
To install the fan unit at a distance, an installation kit is required (with spare covers for closing air outlets). Maximum distance 3 m.
In air extraction a one-way flap with a maximum opening pressure of 65 Pa should be installed.
In air extraction mode, always ensure adequate fresh air in the room if the appliance is being operated at the same time as a chimney-vented fireplace.
For optimum performance in air recirculation we recommend an outflow surface area of at least 400 cm².
For air recirculation an air recirculation module is required.
Total connected load 300 W.
Power consumption standby/display off 0.4 W.
Please check the user manual for how to switch off the WiFi module.
For installation in a single worktop cut-out the installation accessory VA 200 090 must be placed between the appliances. This includes a connection strip and furniture supports that ensure cabinet stability.