1 / 0










Belirtimler
Paslanmaz çelik iç gövde
Sabit su bağlantılı entegre buz makinesi
Buz küpleri, kırık buz ve soğuk su için aydınlatmalı su ve buz pınarı
Masif aluminyum kapı rafları
Net hacim 191 litre
Enerji sınıfı A+
Sıcaklık göstergeli elektronik kumanda.
Dinamik soğutma.
Otomatik buz çözme fonksiyonu ile buz oluşumu engellenir.
Arıza ve açık kapı ikazları.
No-frost teknolojisi ile hızlı soğutma.
- 14 °C ile - 25 °C arasında sıcaklık ayarı yapılabilir.
4 yıldızlı derin dondurucu.
Derin dondurucu kapasitesi 9 kg/24 saat.
Arıza durumunda gıdaları 10 saat boyunca saklar.
4 adet metal raf,2 tanesi ayarlanabilir olmak üzere.
2 tane tamamen dışarı çekilebilir saydam çekmece,biri büyük biri standart boyda
2 adet tavan sporu ile iç aydınlatma
1 adet ekstra derin kapı rafı
Saydam kapaklı kapı rafı
Aydınlatılmış öne çekilen klape,büyük sürahi ve sporcu şişelerine yer açar.
Entegre sabit su girişi.
Entegre buz makinesi devre dışı bırakılabilir.
Yaklaşık buz küpü üretimi 1.9 kg/24 sa.
Buz küpü ve kırık buz alma imkanı.
Anti-Clump-Tekniği
Çıkarılabilir buz kovası kapasitesi, yaklaşık 2.5 kg.
Soğuk su kapasitesi yaklaşık 1.5 litre.
Enerji tüketimi 306 kWh/yıl.
Ses seviyesi 41 dB (re 1 pW)
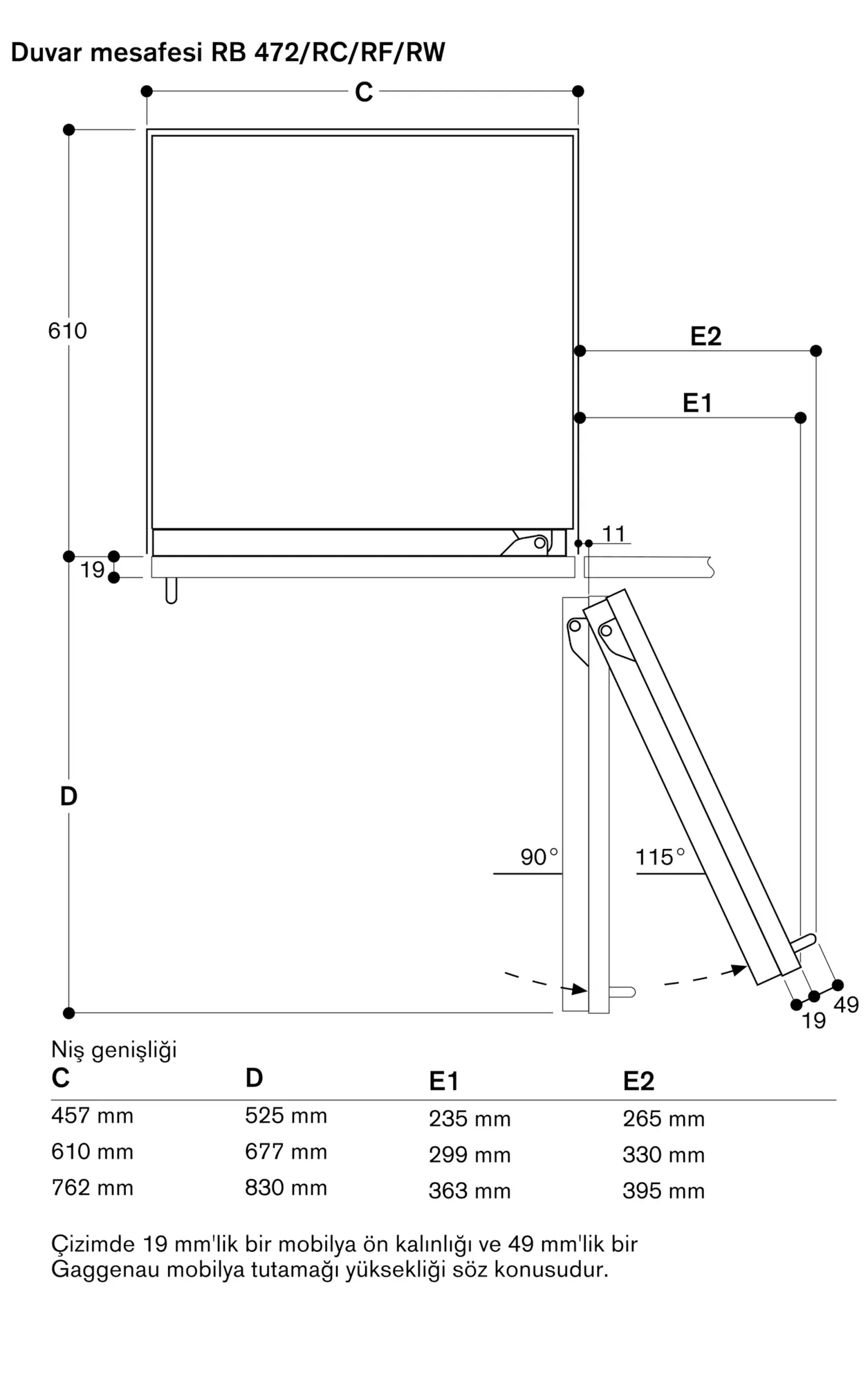
Düz menteşe.
Kapı açılma açısı 115°, 90° olarak montaj yapılabilir.
Bağlantı değeri 0.55 kW.
Bağlantı kablosu 2.0 m, fiş dahil.
Su girişli.
2.0 m su hortumu, 3/4 " bağlantı ile.
2 ile 8 Bar arası su basıncına uygun.