1 / 0






Vurgular
Belirtimler
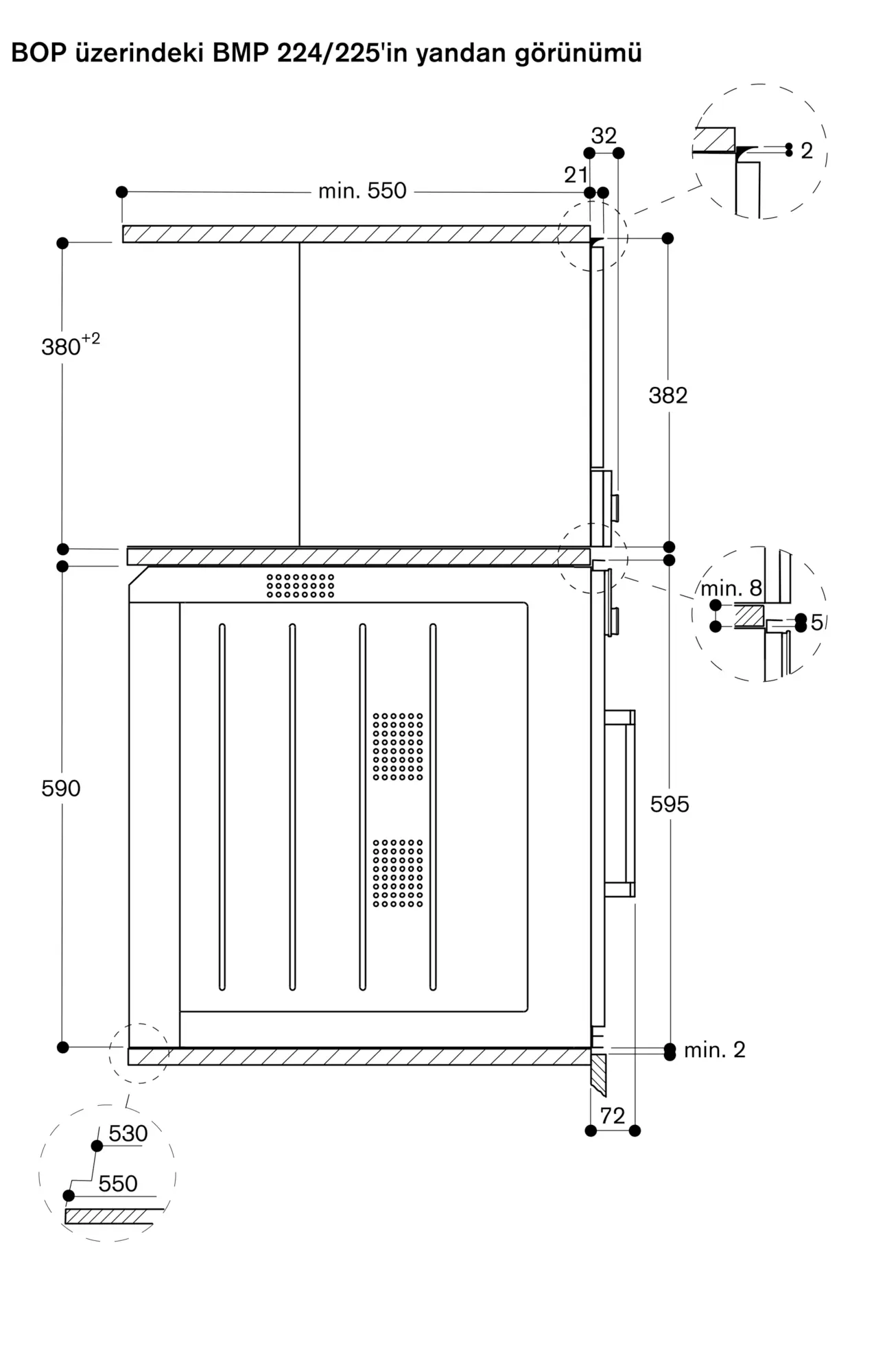
Hemyüzey montaj
Otomatik açılan kapı / tutma kolu olmadan kullanım
Mikrodalga ve ızgarayı tek başına yada kombine olarak çalıştırma imkanı
5 ısıtma türü, kombine çalışma ve dinlenme dahil otomatik ardı ardı çalıştırabilme imkanı.
TFT dokunmatik ekran
Elektronik ısı kumandası
İç hacim 21 Litre
2000 Watt gücündeki ızgara 3 farklı güç kademesine ayarlanabilir
Bireysel tarifleri kaydetme seçeneği.
Otomatik açılan kapı.
Kontrol düğmesi ve TFT dokunmatik ekran ile kolay kullanım.
Anlaşılabilir metin ekranı.
110° yana doğru açılan kapı.
innowave teknolojisi
Fırın içi anlık ısı göstergesi.
iç aydınlatma 25 W.
3 katlı kapı koruması.
Çocuk kilidi.
Güvenlik kapatması.
Dış gövde soğutması ile değerli ahşaplar koruma altında.
Kapı yönü değiştirilemez
Yükseklik ayarlı ayaklar.
Cihaz kapısı ile mobilya paneli arasında minimum 5 mm mesafe bırakılması gereklidir.
Mobilya ile dış kapı yüzeyi arasındaki fark 21 mm olmalıdır.
Köşe planlaması yapılırsa, mutlaka 90° kapı açılma açısı öngörünüz.
Toplam bağlantı değeri 2.0 kW.