Produkt ist nicht mehr verfügbar
Weitere Informationen und Dienstleistungen zu diesem Produkt
1 / 0






Produkt ist nicht mehr verfügbar
Weitere Informationen und Dienstleistungen zu diesem Produkt
Produkt ist nicht mehr verfügbar
Weitere Informationen und Dienstleistungen zu diesem Produkt
Produktdetails
Flächenbündiger Einbau
Grifflose Tür / automatische Türöffnung
Einzel- und Kombibetrieb von Mikrowelle und Grill
Folgebetrieb von bis zu 5 Betriebsarten inkl. Kombibetrieb und Ruhezeit programmierbar
TFT-Touch-Display
Elektronische Temperaturregelung
Garraumvolumen 21 Liter
Mikrowellenbetrieb mit 5 Leistungsstufen: 900, 600, 360, 180, 90 W.
Flächengrill mit 3 Intensitätsstufen, Maximalleistung 1300 W.
Flächengrill mit Mikrowellen-Leistungsstufen 360, 180 und 90 W kombinierbar.
10 Automatikprogramme mit Gewichtsangabe:
3 Auftauprogramme 4 Garprogramme 3 Kombiprogramme
Speichermöglichkeit individueller Rezepte.
Automatische Türöffnung.
Bedienung durch Drehknebel und TFT-Touch-Display.
Info-Taste mit Bedienhinweisen.
Seitlich öffnende Tür mit 110° Öffnungswinkel.
Innowave.
Ist-Temperaturanzeige.
25-W-Garraumbeleuchtung.
Hygienischer Edelstahl-Garrraum mit Glaskeramik-Boden.
Wärmeisolierte Tür mit Zweifach-Verglasung.
Dreifache Türsicherung.
Kindersicherung.
Sicherheitsabschaltung.
Gehäusekühlung mit Temperaturschutz.
Türanschlag nicht wechselbar.
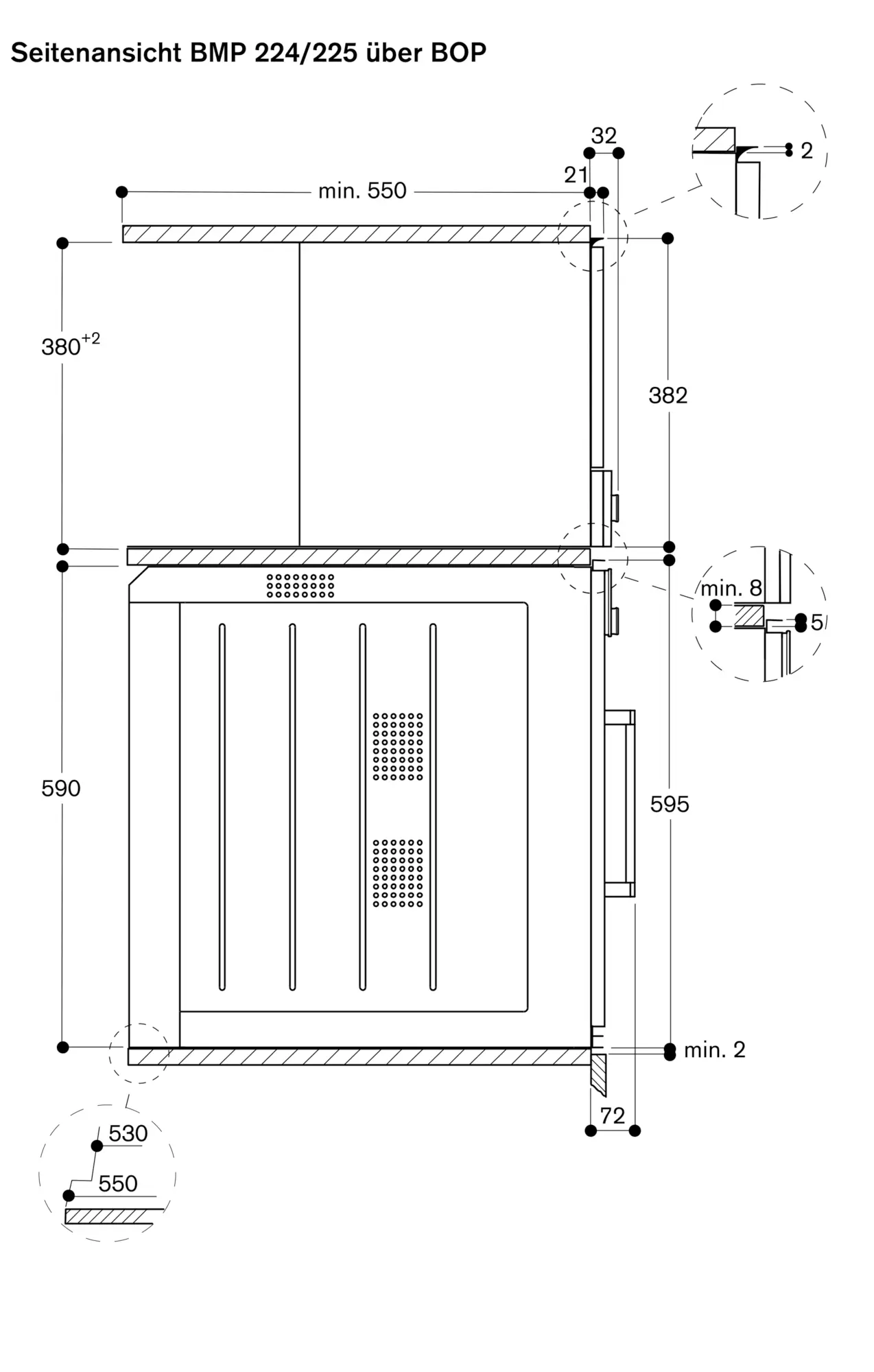
Mindesteinbauhöhe 85 cm (Oberkante Nischenboden).
Höhenverstellbare Füße.
Einbau BMP über BOP mit Zwischenboden.
Seitliches Spaltmass zwischen Gerätetür und Möbelfront min. 5 mm.
Abstand Möbelkorpus bis Türfrontfläche 21 mm.
Bei Planung einer Ecklösung Türöffnungswinkel von mind. 90° berücksichtigen.
Gesamtanschlusswert 2.0 kW.