1 / 0














Araç uyumluluğun denetlenmesi
E-numaranız nasıl
Model numarası (E-number), aygıtınızın tip plakasında yer alır.
Belirtimler
Modüler tavan havalandırması için aydınlatmasız kumanda modülü
Aydınlatma bulunmayan konfigürasyonlar için
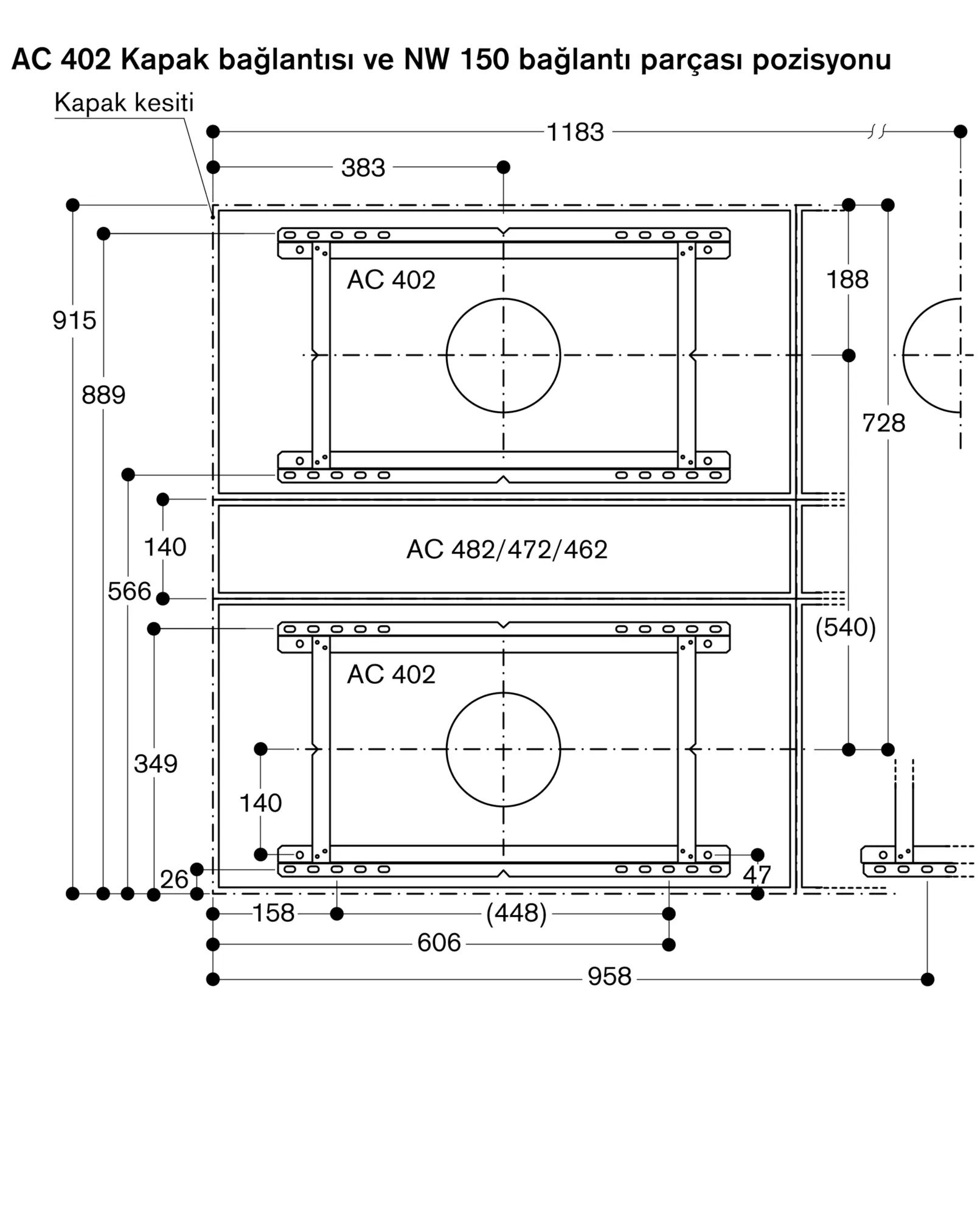
Hava performansı, birlikte kullanılan emme motoruna göre değişir. Havalandırma cihazları bölümünde ilgili sayfayı inceleyiniz.
7-tuşlu enfraruj uzaktan kumanda. Acil durum tuşları kumanda modülü üzerinde.
3 elektronik güç seviyesi ve 1 yoğun mod.
Aralıklı havalandırma, 6 min.
Ardıl havalandırma, 6 min.
Yağ filtresi doluluk göstergesi.
Cihazlar birbirlerine data ağ kablosu ile bağlanabilir.
Eğer cihaz hava çıkışlı planlanırsa yada hava çıkışı yine ev ortamına verilyorsa örneğin bodrum kat veya açık şömineler bulunuyorsa cihaz kolay ulaşılabilir bir elektrik şalteri ile planlanmalıdır.
Filtre modülüne monte edilir.
Toplam bağlantı değeri 365 - 1040 W.
Bağlantı kablosu 1.75 m, fişli.